project-highlight-image

Design Proposal of a Drainage Canal Waste Retrieval Device

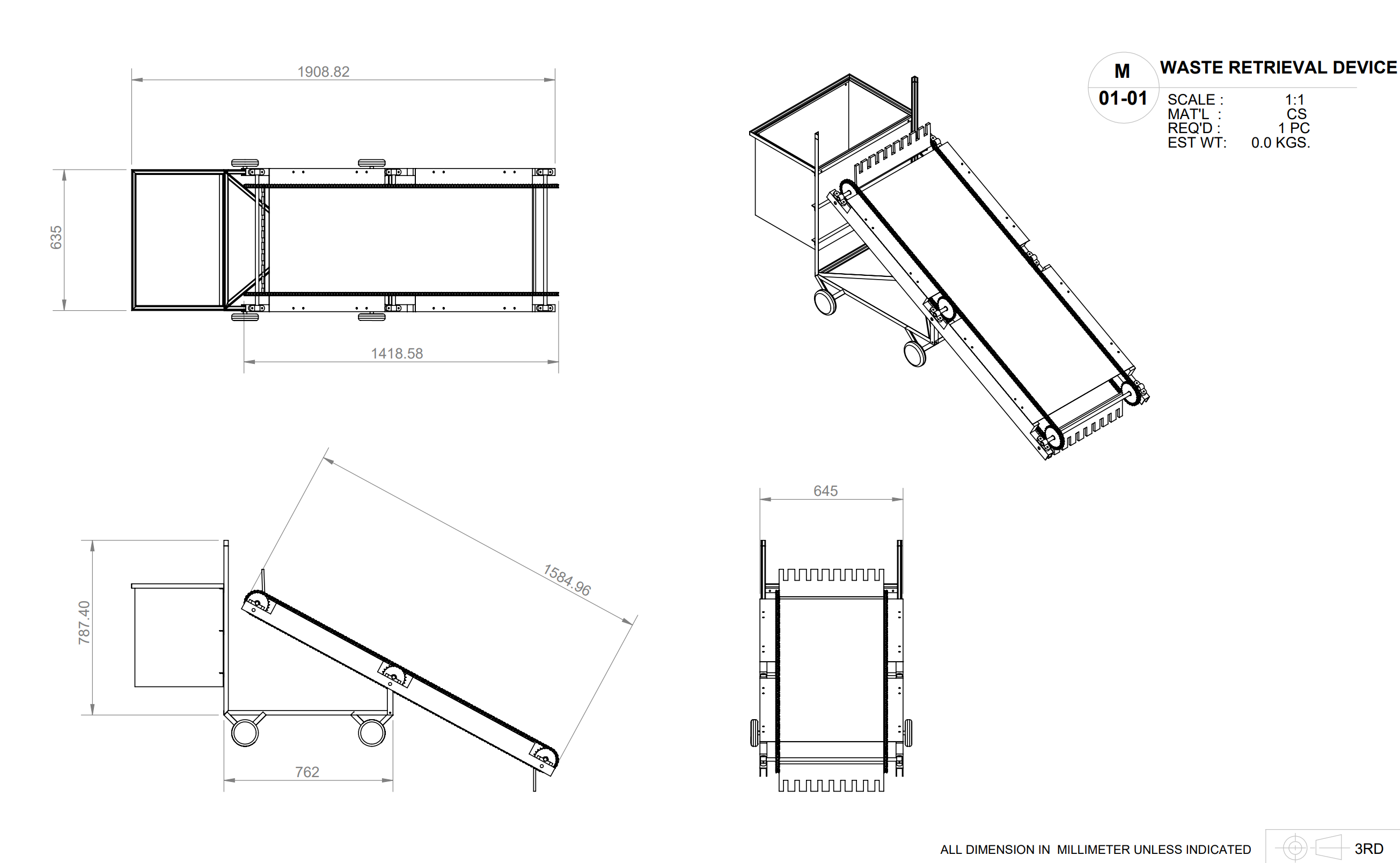
This project involved the design proposal of an innovative Drainage Canal Waste Retrieval Device specifically engineered to address the challenges of stagnant water and flash flooding in small-scale communities like Philippine barangays. By integrating a motorized conveyor-style mechanism with a solar-powered energy system, the machine provides a faster, effortless alternative to traditional manual declogging methods, which are often labor-intensive and pose significant health risks to workers.
Home
Questions?
hero-image

John Patrick Eustaquio

Project Timeline

Nov 2022 - Dec-2022

HighlightS

Assigned as the Technical Designer and Co-Leader of the group

SKILLS

SolidWorks
AutoCAD

External Links

The Challenge In the Philippines, frequent typhoons and improper waste disposal lead to severe flooding, primarily due to solid waste clogging drainage systems. Current solutions in small communities often rely on labor-intensive, manual methods—such as using shovels, rakes, or even bare hands—which are inefficient, time-consuming, and pose significant health risks to workers. The Solution The Drainage Canal Waste Retrieval Device is an automated system designed for faster, effortless declogging of small-scale stormwater drainage channels. By utilizing a conveyor-style mechanism, the device continuously retrieves floating solid waste (plastics, cans, bottles) and deposits them into a storage bin, preventing the accumulation that leads to flash floods. Key Features & Technical Specifications Conveyor Mechanism: Features a motorized chain-and-sprocket system with integrated "lifters" (rakes) to scoop waste from the water. Renewable Energy Power: Powered by a 12V DC motor integrated with a 20-watt solar panel and 12V battery set, allowing for sustainable operation. High Retrieval Capacity: Rated to lift at least 2 kg of waste per cycle with a 20-liter detachable storage bin. Durable Design: Built using an angle bar frame, sheet metal, and wire mesh, with a Red Oxide coating to prevent corrosion in wet environments. Mobility: Equipped with heavy-duty caster wheels for easy deployment across various open-channel drainage systems. Design & Methodology The project followed a rigorous engineering process, beginning with conceptual brainstorming and 3D modeling in SolidWorks. The prototype underwent a series of experimental test runs across different drainage environments to ensure its durability, speed, and overall efficiency in waste retrieval. Impact This device offers a scalable, low-cost solution for barangays and subdivisions to maintain their drainage systems. By automating the retrieval process, it significantly reduces the manpower required for maintenance while protecting the safety and health of community workers.